Singaporean developer World Class Land has submitted a new DA for a 91 level residential skyscraper located at 30 Albert Street.
The tower will rise to 274m AHD which is currently the maximum hight allowed in Brisbane’s CBD due to shadowing issues with Brisbane Airport’s current ground radar system.


30 Albert Street will match the height of nearby Brisbane Skytower while beating Shayher Group’s 300 George Street by 12 metres.
Designed by COX Rayner Architects, the tower consists of a total of 2991 sqm of recreation across three dual level decks on the low-rise, mid-rise and high-rise.

Recreation levels:
Level 6 & 7: |
Level 66 & 67: |
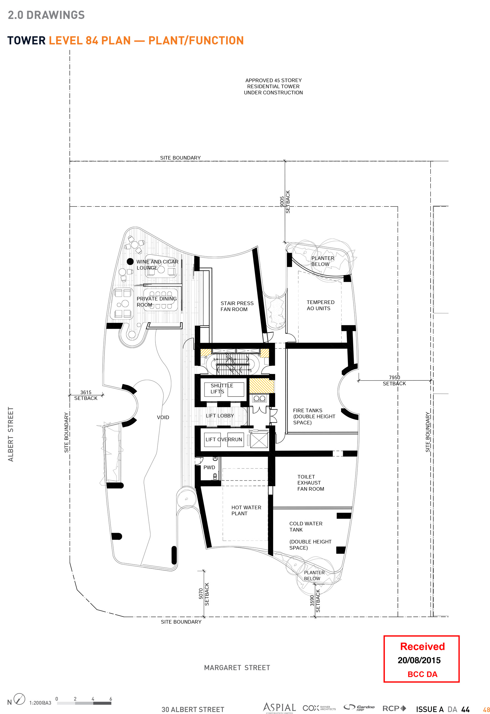
Level 83 & 84: |
|
|
|
Total apartments:
| 1 x | Penthouses (4 + 5 bath) |
| 90 x | 3 Bed, 2 Bath |
| 438 x | 2 Bed, 2 Bath |
| 79 x | 2 Bed, 1 Bath |
| 124 x | 1 Bed, 1 Bath |
| 732 total units |
A total of 636 sqm of retail space is planned for the ground floor levels.




Design statement:
Located on Albert Street and on the edge of the city botanical gardens this proposal reinforces Albert Street as the “green” linkage between Brisbane city’s two major parks.
A sculptural tower form and ‘eroded podium’ approach is in direct response to its natural and built context. Forms, materials and colours abstract nature and become counterpoints to the immediate built environment. The tower is divided into 3 rises separated by community facilities. Dynamic forms at these community hearts protrude and recess creating a multitude of spaces that are covered in landscape creating and architecturally defining the vertical village.
The “eroded” podium is in response to the immediate built environment – from the adjacent heritage building to the “tower in plaza” concept of Abian and the semi podium of AM60. All three buildings resulting in different architectural and street expressions are united by this proposal. The private land of Beatrice Lane is maintained and improved in its material amenity.
Vertical Village:
The proposal creates recreational gardens and community facilities between each rise up the height of the tower.
The approach to these levels is to form community hearts to each rise as well as becoming an integral part of the towers architecture.
Each community/ social heart encompasses multitude of uses such as pools, cinemas, wellness retreats and private dining rooms creating a vertical village all set within a subtropical landscape that is both inside and out projecting and retracting, creating a fluid lifestyle hub.
Tower Form
The sculptural tower form driven by its context provides flanks that are streamlined, and ends that are convexed and concaved. A heavily relieved form with deep recesses reflects the internal circulation and contains pocket parks up the tower.
A sculptural approach which has been configured to optimise planning and respond to the immediate built context and the abstract of landscape.
Open balconies punctuate the façade running up the tower to level 38. Levels above control ventilation via a series of random vertical openable panels due to unfavourable wind conditions.
Architecturally this becomes a streamlined tower expression with random vertical panels towards the top of the tower result in a glistening effect inspired by tree tops.
The tower is divided into three rises – low rise, mid-rise and high rise creating neighbourhoods. Projecting and recessing community hub floors are located between the rises defining the vertical village.
Aspial, the corporation behind World Class Land is well known for developing Australia 108 in Melbourne and has recently also purchased 240 Margaret Street for reported sum of $25 million.
It is anticipated that 240 Margaret Street will be developed into a tower of similar large scale nature.
All images and information supplied by PDOnline. The DA for this development is A004196824.

















pls add me to your mailing list