A revised development application has been lodged for the construction of Kangaroo Point’s first supermarket as well as residential apartments located at 25 Ferry Street, Kangaroo Point.
The mixed-use proposal now supersedes a previous development scheme which featured two striking subtropical buildings designed by A+ Design Group.
The new application, which has been proposed by Fabcot Pty Ltd and designed by Cottee Parker plans to accommodate a full retail podium featuring a 1,742sqm supermarket on the ground floor as well as food and drink specialty stores.
Above the supermarket, a mezzanine level is proposed which would function either as ancillary office and storage space for the supermarket downstairs, or as a stand-alone central office which could accommodate a head office for the supermarket, or otherwise a separate business.
The main driver behind the development is the establishment of a supermarket in this location. The proposed supermarket has a GFA of 1,742m. (ground floor level), which will be a limited line supermarket, providing a choice of goods that will be somewhere between a metro style offer and full line size.
A strong trading catchment has been identified within the local area, that is currently not serviced by a local supermarket. The establishment of a supermarket in this location will deliver additional choice and convenience for residents. The Kangaroo Point Peninsula Neighbourhood Plan also contemplates the establishment of a supermarket in this location, as an anchor to the Town Centre. – Development application
A residential tower comprising 62 apartments is proposed above the commercial podium which features apartment sizes averaging 98sqm per apartment.
A full glazed wall facade is proposed for the main bedroom and living spaces to open onto wrap-around balconies.
Communal amenities and recreation space are located on level 01 and include an indoor gymnasium, pool, lounge deck, BBQ areas with seating pod and an open lawn.
The development, however, does not feature any rooftop recreation amenities of any sort which is somewhat unusual for a new residential project within the BCC area.
Development rundown
- GFA for commercial aspects: Supermarket shop 1,742sqm, mezzanine (ancillary space to supermarket or stand-alone office): 427sqm, food and drink outlet (speciality retail) 297sqm.
- x62 residential apartments in total: 34 x 2 bedrooms 28 x 3 bedrooms.
- Site area: 3,048sqm without dedication for road widening. 2,708sqm after land dedication.
- Building height: 10 storeys including mezzanine
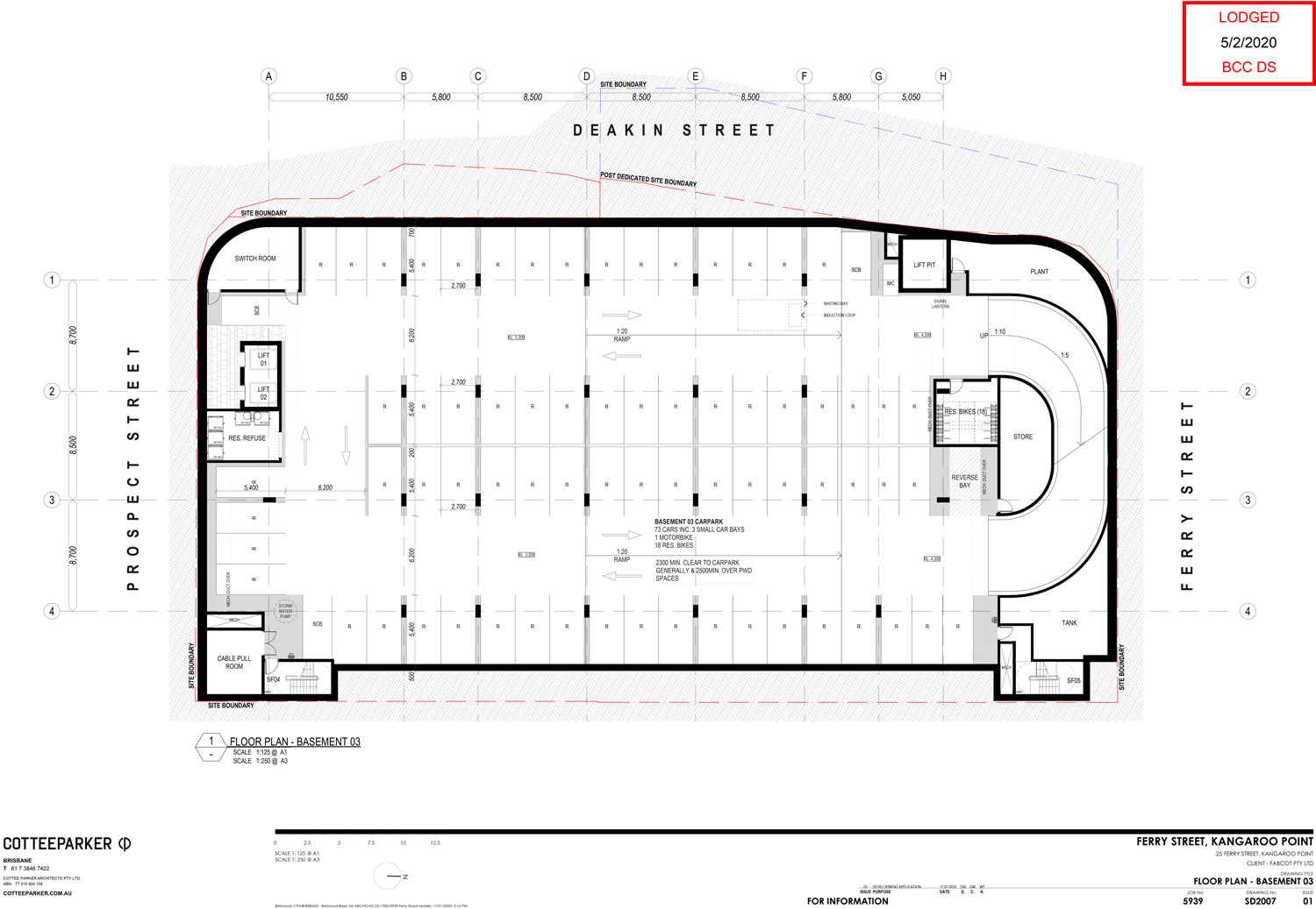
- Car parking: Retail – 67 spaces, residential – 127 spaces including 10 visitor
- Bicycle spaces: 13 employee spaces + 6 visitor spaces. Residential (including visitor) – 62 resident spaces + 16 visitor spaces − Residential spaces are located on Basement level 02 and 03 and visitor spaces located at Prospect Street entrance.
- A loading bay is positioned within the building off the Prospect Street entrance, shared with the residential basement access. Refuse collection vehicles and delivery vehicles are able to enter and exit the site in a forward gear.
- Resident’s amenities: level 1 pool, gym, bbq and open grassed area.
The development takes advantage of the site’s proximity to employment (CBD) and easy access to social infrastructure and public transport options, and adopts a luxurious contemporary scheme, that retains a design aspect consistent with the style of the buildings surrounding the site.
The proposal includes a diverse material palette comprising of brick, concrete, stone, perforated cladding, aluminium battens and glazing, creating a vibrant cornerstone feature for the suburb. The colour palette comprising a bold, yet neutral colour scheme of predominately grey, white and bronze. – Development application
The development application for this project, available to view on Brisbane City Council’s planning & development online is A005384910.

As a kangaroo point resident I would gladly welcome a Woolworths.
I’m sure council would be happy to approve, after all it is continually appoving high rise development in our suburb so where do they expect everyone to shop??
Im also a Kangaroo Point resident and I’m really looking forward to this, that and the bridge are 2 of the main reasons I will remain living here. Seriously, there is nowhere to eat or buy groceries. Especially since IGA burnt down. Kangaroo Point has a Night Owl and a pub and that’s basically it
I would like to request that the Woolworths is not a Metro but a bigger store, like the Woolworths at Spring Hill on Turbot Street. This size would be better for the KP area.
Correct link is https://developmenti.brisbane.qld.gov.au/Home/FilterDirect?filters=DANumber=A005384910
Yes, a larger supermarket is needed, larger than a Metro. Woolworths please do that.
We would welcome a new bigger Woolies and shopping facilitates as they are definitely needed in KP. We want to be able to walk or ride to a shopping precinct.
Yes I agree a larger supermarket would be great rather than a metro supermarket