A development application has been submitted by Harvest Property for a new residential development located at 7 Burns Street, Indooroopilly and 97 Swann Road, Taringa.
The proposed development comprises the construction of a multi-unit dwelling, consisting of 35 units, configured over 2 stages, with ground floor and basement level car parking and communal terraces on the rooftops of each stage.
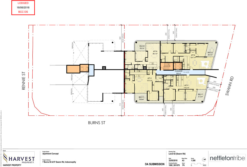
Designed by Nettleton Tribe Architects, the project appears to be positioned for an owner occupier/downsizer market.
Project Rundown:
- 35 units over 5 storeys, with 19 in Stage 1 and 16 in Stage 2
- 1 x 1 bedroom apartments
- 12 x 2 bedroom apartments
- 20 x 3 bedroom apartments
- 2 x 4 bedroom apartments
- Ground and basement level car parking with a total of 64 spaces (including 59 resident space and 5 visitor spaces)
- A total of 44 bicycle spaces, including 35 resident spaces and 9 visitor spaces
- Total GFA of 4005 square metres (equivalent to 203% of pre-road widening site area and 209% of post-road widening site area)
- Site cover of 1150 square metres (equivalent to 58% of pre-road widening site area and 60% of post-road widening site area)
- 196 square metres of deep planting in natural ground (equivalent to 10.2% of postroad widening site area)
- 111 square metre communal open space on two rooftop terraces (equivalent to 5.7% of post-road widening site area).
Site Context
The subject site is located within the Medium Density Residential Zone and within the bounds of the Indooroopilly Centre Neighbourhood Plan, however, is not within a specific neighbourhood plan precinct. The subject site is currently occupied by three pre-1946 Dwelling Houses, each of which will be removed to facilitate the proposal.
The site is not subject to any heritage or demolition provisions within the Planning Scheme and consequently, the demolition/removal of these dwellings will occur subject to Building Work approval from a private certifier.
Design Rationale
Nettleton Tribe have prepared an architectural design statement which describes the rationale behind the proposed design:
“The new building is a fragmented built form broken into many segments and heights. It’s contemporary aesthetic and nature is a reflection on the immediate surrounding architecture from a use, height and material point of view. The building architecture slowly steps up the Burns St. ensuring that the built form reflects the surrounding topography. In addition, very large deep recesses break the façade along the length of Burns St and to the adjoining neighbour.
The combination of the extensive stepping and the large recesses provides an appealing built form that is highly articulated and fits nicely into the immediate urban context. Along Swann Rd. the surrounding architecture immediately to the west comprises of numerous 3 storey brick apartment blocks.
Directly across this road, there is numerous more contemporary Apartment buildings and some large contemporary houses. To Burns Rd and Rennie St, there is a combination of new contemporary homes, old brick houses, post wars houses and a number of Queenslander style houses. Therefore the immediate area surrounding the site varies in bulk, height, style and materiality. The design of this apartment project, therefore, responds to the immediate context to ensure the architecture will sit comfortably within its surroundings.”
Landscaping & Outdoor
According to the development application, the project features extensive gardens.
“The combination of the raised gardens, metal fence and landscaping ensures the maintenance of privacy to the ground floor apartments. To the immediate neighbours to the west, there is extensive landscaping and terraces stepping up the hill and following the natural terrain.
These landscaped terraces soften the architecture and provide privacy for the neighbours. Higher up the building there is numerous private and public roof terraces that are at 3 different levels stepping up the hill. These private landscaped terraces are large in size and capture the hinterland view to the south and the city view to the north. Each stage also includes large common roof terraces with outdoor seating, pergolas and BBQ’s”.
Previous Application
A previous development application was submitted for 7 Burns Street, Indooroopilly in July 2016 by Urban Strategies which was subsequently approved by council in March 2017.
The development application number for this project is A004952892.
