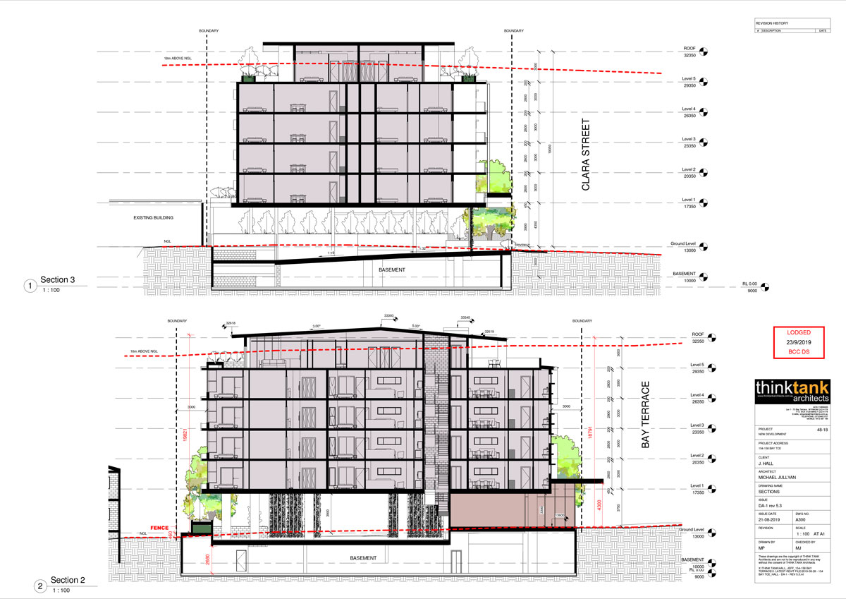
A development application has been approved for an 6 storey residential building located at 154-158 Bay Terrace, Wynnum.
Submitted by Rusty Canon Pty Ltd, the development comprises of 26 apartments in total including 8 x 2 bedroom apartments and 18 x 3 bedroom apartments (including 2 penthouses).
Additionally, a 248 square metre ground floor adaptable retail tenancy is planned as well as sky gardens on roof terraces.
According to the architects, Think Tank, the design responds to its high street context with scale matching the adjacent Bay Terrace office tower development approval.
“Street trees, planting beds, green walls, an articulated facade and maximum width footpath awning and street activating glazing with wide retail door openings provide high quality human-scale interaction and shaded, covered pedestrian walkways with a foliage dappled lighting to provide a liveable outcome with a subtropical feel delivered thru extensive greenery, shading devices and layering facades.” – Development Application
The development also features a tiered facade which steps back away from the boundaries and reduced the overall building size.
Within the DA’s artist’s impressions, the development is shown as ‘Cape Apartments’.
The development application for this project, available to view on Brisbane City Council’s Planning & Development Online is A005293206.
