A former Metro Property residential development proposal has been replaced by a new proposal for a mixed use retail and office precinct by OPD Developers who specialise in commercial developments.
Located at 66-98 Montpelier Road, Bowen Hills, the development designed by Nettleton Tribe and known as ‘Valley Live’ would include 35,474m2 (GFA) of office space and 9,986m2 (GFA) of retail space.
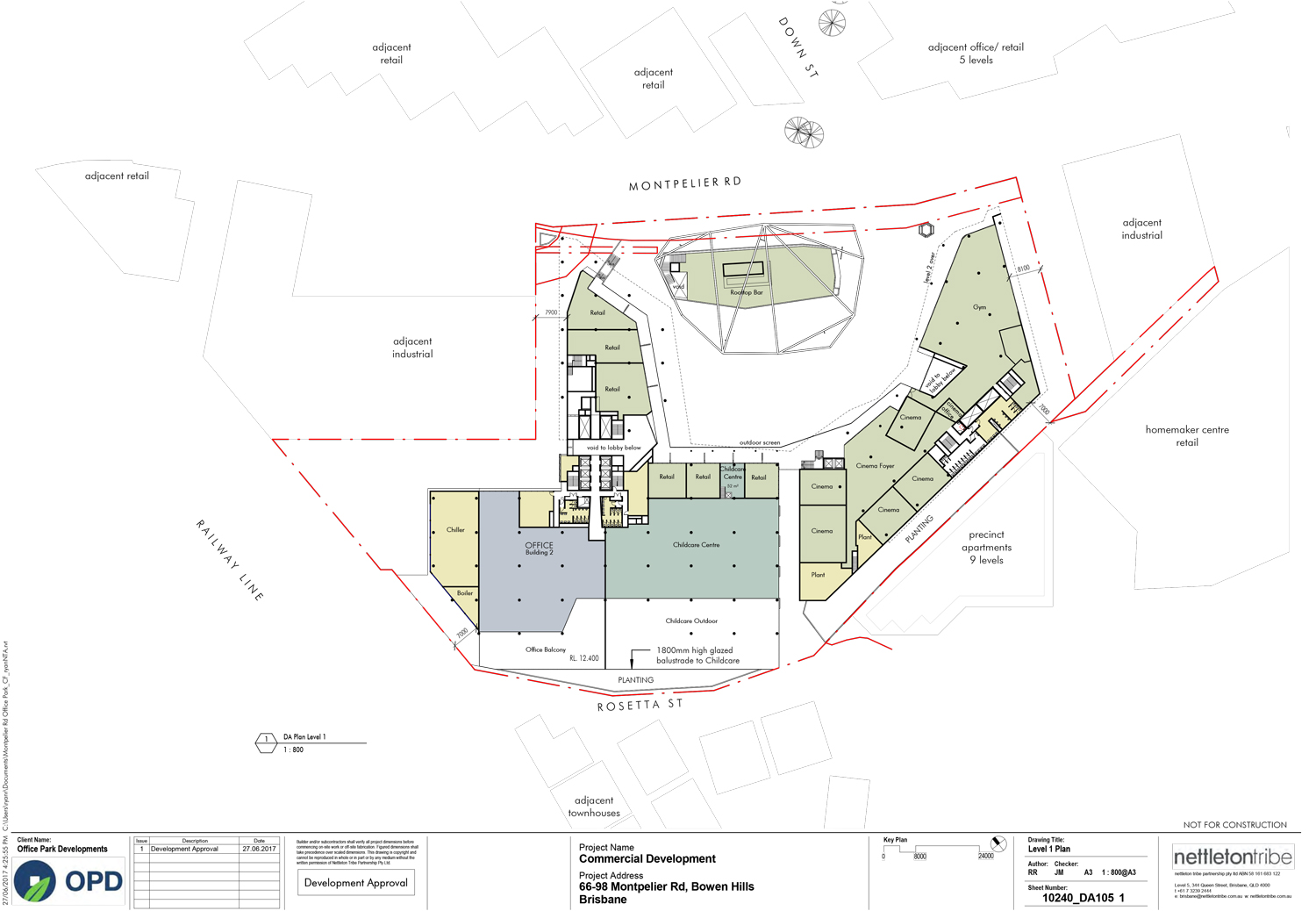
The proposal consists of four buildings set around a central urban plaza with retail activation along the Montpelier Road frontage and urban plaza.
The three towers will be medium rise in nature and rise to eight storeys high.
The podium levels will consist of a mix of retail tenancies, restaurants, boutique cinema, gym, childcare centre, supermarket and a rooftop bar on Building 4.
Design Intent
Designed to reduce bulk to Montpelier Road, towers are designed to hug the boundaries of
the site, introducing a human scale element, a 2 level bar/restaurant, to the main street frontage. The main jewel of the site, the feature awning captures the eye on arrival to the site and is forever present during the experience of the sub-tropical plaza.
Screening applied to the East, North and West facing tower walls provide visual clarity
to the towers whilst also helping achieve NABERS and Greenstar rating through mitigation of direct sunlight.
Dynamic horizontal forms create a visual intrigue from both interior and exterior, maintaining open floor plates offering flexibility in design. The architecture responds to the area. Feature balconies to all buildings take advantage of prime viewing locations towards the city and over the plaza below.
They also act to provide relief of form from the building edge and enhance architectural form and sight lines from around and within the precinct.
The DA number for this development is A004687159.

The design of this is atrocious. No street presence, it’s basically an overblown strip mall in what should be a high-quality urban enrivonment.
Was this designed 10 years ago? It’s a digusting bland design. Developers are turning Brisbane into ugly concrete jungles.
Excellent! The cinema will be very welcome in the area.
Looks horrible. Hope it falls through
God; I am not against development. I am horrified at the lact of vision. The many glass buildings in Brisbane is not good for the enviroment. None of these inside places has flow through air; they all rely on airconditioning. There is nothing in the new developments that is affordable for the average Jane or Joe. The new developments are not in sympathy with what is already there. Look what happened to Astor Terrace as just one example.