A new development application has been submitted on 458 Brunswick Street, a site of a previous hotel development application known as The Dunmore.
Pointcorp, the developer behind the submission have proposed a 13 storey mixed use tower comprising of 789 sqm of ground floor restaurant space, 140 hotel rooms on levels 1-5, 30 residential apartments on levels 6-8, 836 sqm of office space on level 9 and a rooftop terrace, including communal outdoor area and restaurant/bar.


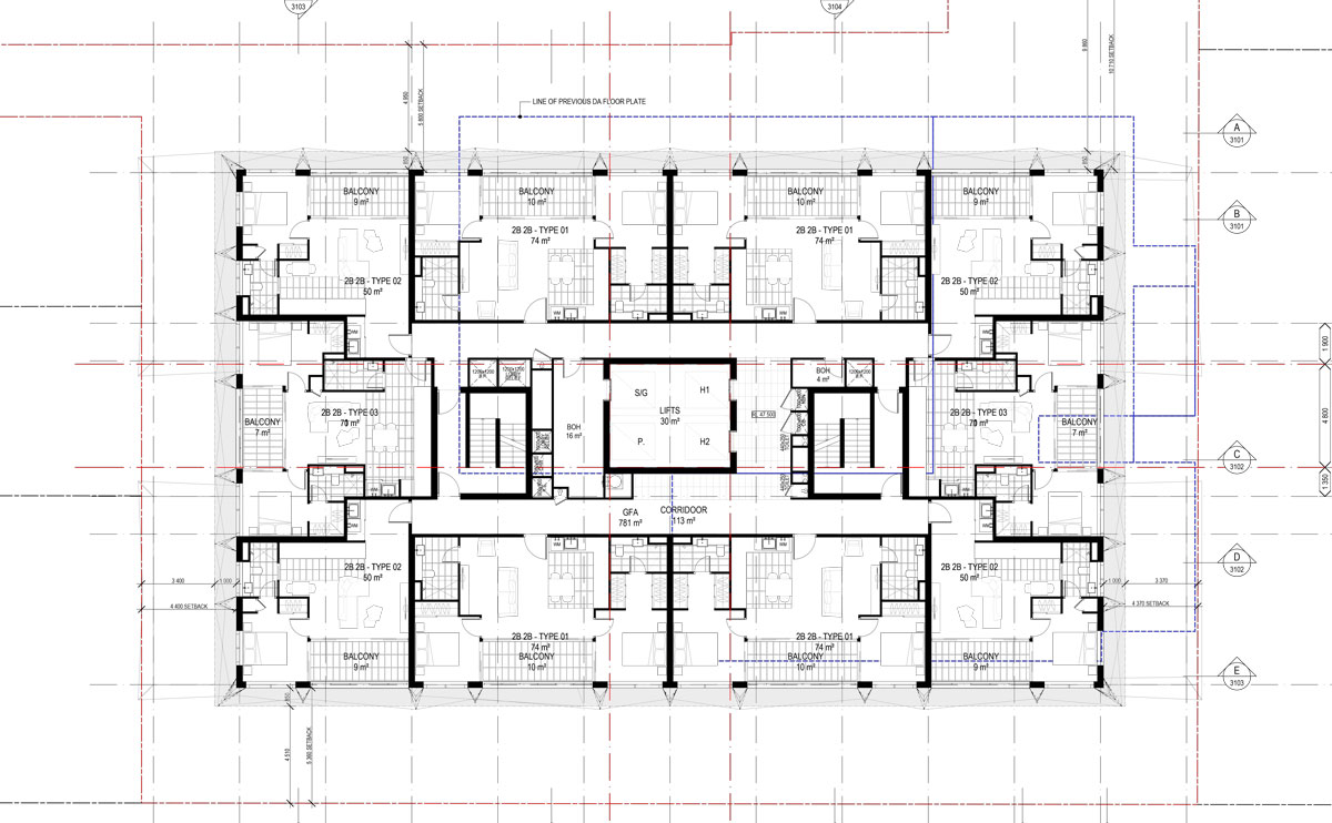
Residential Apartment Breakdown
- x12 – One bedroom Apartments
- x18 – Two Bedroom Apartments
- x30 Apartments total
Rooftop Deck
The rooftop consists of swimming pool, cabana and sun lounges, planter gardens, private bar and dining, restaurants and bars.



Ground Floor
On ground level, the plan includes a shared lobby for hotel and residential consisting of a bar, lounge area and reception. A 789 sqm two level retail/restaurant space is planned for the lower level.

Typical Floor Plates
Designed by Cottee Parker Architects, the current site is a vacant block that formerly housed a Blockbuster video outlet.

Pointcorp has recently announced that the brand for this hotel will be Hotel Indigo. In a previous development application, Peppers was slated as the hotel brand of the 4.5 star Dunmore Hotel.
The DA number for this development is A004508792.





More tiny apartments for Brisbane. 2 bedroom apartments with only 74m2 and 10m2 balcony, come on city council, stop approving this rubbish
Facade an homage to Hotel Hotel at Nishi, Canberra?
Too high. 6 floors is plenty in this location. Absolutely NO need for any apartments, the Brisbane market is already flooded with brand new low quality UNRENTED junk. We don’t need any more.