A development application has been submitted for a new 20 storey residential tower located at 60 High Street, Toowong.
Proposed by Nan Xin Brisbane Toowong Ltd Pty, the development comprises of three ground floor tenancies, three podium levels, three internal communal open space areas, a rooftop terrace and recreation area and 171 residential apartments in total.
Designed by Conrad Gargett architects, the project aims to creates shared spaces from the ground to roof for enjoyment by residents, visitors and the public.
Vehicles are moved to the rear of the site to allow High St and Ebor St to function as a safe, pedestrian-friendly public space with retail and food premises, street seating and planting.
Shared outdoor rooms are set to punctuate the south-western facade with outdoor dining and relaxation opportunities and connection to landscape with planting, trees and green walls.



According to the architects, the extent and position of glazing and shading is negotiated to maximise views and shading in the summer, to create a cool apartment with excellent cross-ventilation.
The choice of materials, context-appropriate building design, leafy shared spaces and open ground floor proposes to create an enduring architectural product for Toowong and its residents.
Located on the corner of High St and Ebor St, the development scheme proposes a striking and articulated apartment tower form, leafy and punctuated carpark podium, shady outdoor spaces and mixed-use retail, food and beverage offering at street level. The residential tower uses shadow and pattern as an identifying design language by responding to the sun and views. Each façade uses its location and ESD principles combine creating both an iconic building, and one which is complementary to the High St streetscape. – Conrad Gargett
Project Rundown
- Total site area – 1,571sqm
- Frontage to High Street – 37m
- Total number of Apartments – 171 units
- Unit Mix:
- 1 bed – 78
- 2 bed – 84
- 3 bed – 9
- Number of retail spaces – 3 tenancies with a total GFA of 457sqm
- Site cover – Podium 91% (1,430sqm)
- Site cover – Tower 69% (1,086sqm)
- Maximum building height – 73.3m
- 20 storeys from High Street
- 20 storeys from easement
- Basement levels – 2 level plus lower ground floor
- Communal Space – 727m2
- Total Landscape Planting – 517m2
- Planting >1000mm depth – 239m2 (15%)
- Planting <1000mm depth – 278m2 (18%)
- Car Parking Total – 204 spaces
- Residents – 174
- Visitors – 30
- Including 1 accessible
- Including 4 retail
- Motorbikes – 30
-
- Including 2 visitors
-
- Bicycle parking – Total 214
-
- Residents 171
- Visitors 43
-
According to the development application, the project has adopted the design elements advocated in the Brisbane City Council, New World City Design Guide: Buildings that Breathe.
Recreation Amenities
The proposal aims for a ‘high standard of amenity’ to be provided to future residents of the project by the inclusion of a range of facilities in the common areas of the building. The key features will include:
- Rooftop swimming pool and communal terrace including BBQ, dining area and deep landscaping
- Rooftop gym and sauna
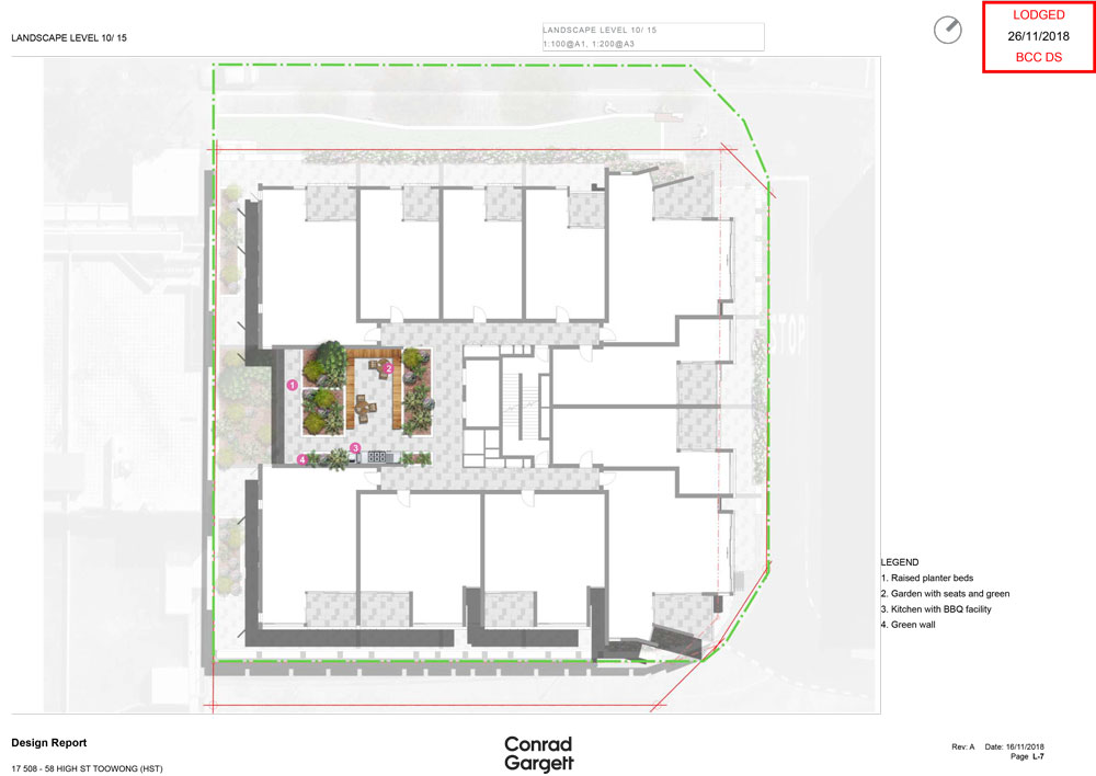
- Winter gardens located at three levels within the building. This includes a double height atrium which is open to outdoor breezes and complemented by deep landscaping areas. The winter gardens typically feature seating, dining facilities and small kitchen
- A communal events room which can be used for a range of purposes including social gatherings, dinner parties and community events
- Cinema room and library again offering residents access to a higher level of amenity and flexibility to use different spaces through the building
- Ground floor retail – offering the convenience of close access to future services and business that might occupy the tenancies

Spaced vertically up the building, 3 double-height outdoor rooms are proposed, which would be able to be shared by all occupants.
The space includes a patio and BBQ space for communal get-togethers, encased by trees, shrubs and green walls.
Floating above this space is a verandah for group meals, yoga sessions and movie screenings, connecting the levels internally, and connecting outside to the inside.
The development application number for this project is A005076003.







